Regnbädd i Tyresö
I Tyresö kommun finns två regnbäddar som dagvattenlösningar i gatumiljö. Bädden på bilden har anlagts på Öringevägen, Tyresö. Det finns även en liknande vid Trollbäcken i kommunen. Den här typen av anläggningar går också under benämningen dagvattenbiofilter, rain garden, växtbädd, regnträdgård eller biofilter.
Tekniken handlar om att efterlikna naturmarks förutsättningar att ta emot och rena dagvatten. I regnträdgårdar skapar man volymer i gatumiljön som innehåller både teknik för magasinering, kontrollerat utflöde, infiltrering i mark samt växtlighet som hjälper till att rena och avdunsta regnvatten.
Anläggningen skapar beredskap för att hantera ökade nederbördsmängder och minskar risk för översvämningar i framtida klimatsituationer.

Varje plats är unik
Regnträdgårdar kan utformas på olika sätt. Eftersom varje plats är unik så anpassas anläggningen till de förutsättningar som råder på platsen och till de behov som finns för rening, recipientskydd, infiltration av dagvatten i mark till grundvattnet m.m. Faktorer som påverkar utformningen är exempelvis markens genomsläpplighet, avstånd till grundvatten, dagvatten-ledningarnas nivåer och djup samt tillgängliga ytor.
Mervärden
Mervärden skapas i form av olika ekosystemtjänster som exempelvis biologisk mångfald och gröna, estetiska miljöer. Växtbäddarna kan även fungera som fartdämpare, som i detta exempel där vägen smalnar av till ett körfält vid växtbäddarna.

Dimensionering
Riktlinjer och metodik för dimensionering och utformning har framarbetats inom Vinnovaprojektet Grå-gröna systemlösningar för Hållbara städer. Metoden bygger på areasamband utifrån tillrinningsområdets hårdgjord yta. Generella riktlinjer för utformning finns framarbetade i Portland (USA).
För anläggningarna vid Öringevägen har man utgått ifrån de ytor som fanns tillgängliga och räknat effekt utifrån det. Det fanns inga specifika krav på utjämningsvolym eller reningseffekt. Den yta och anläggningsvolym som skapades beräknades kunna ge stor reduktion av toppflöden med utflöden som ligger marginellt högre än avrinning från naturmark från området.
Utformning och placering generellt
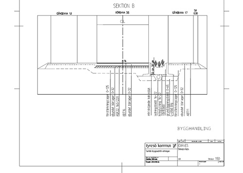
De fyra växtbäddarna är placerade i fordonsdelen av gatan i anslutning till en korsning. Bredden är ca 1,3 m., längden varierar mellan 4-8 m. De är nedsänkta i gatan och består av ett makadamlager med dräneringsledningar som är kopplade till dagvattensystemet samt med en kupolbrunn där dagvatten kan brädda till dagvattennätet vid höga flöden. På makadamlagret finns växtbädd och växter.

”Lagerföljd” i växtbädden uppifrån och ner
- Tom volym ovan växtbädden ca 300 mm.
- Växter: Arter av örter och halvgräs som är vildväxande i regionen, i kustnära miljöer. Carex sp. Aster tripolium, Lythrum salicaria, Veronica longifolia, Juncus gerardii, Juncus effusus, Lysimachia vulgaris.
- Växtbädd: min. 500 mm jordblandning för plantering av örter, mullhalt 5-6%.
- Magasinsvolym: Makadam fraktion 16-22 mm, 300-600 mm.
- Tätskikt: Gummiduk.
- Avjämningslager: 100 mm sand.
- Botten: Geotextil som materialavskiljande lager.
Vatten leds in till växtbäddarna via öppningar i stödmurar och kantsten. Överskottsvatten avleds sedan till dräneringsledning via kupolbrunn. Även dagvattenbrunnar och nedstigningsbrunnar finns i systemet.
Läs mer:
Karta
Snabbfakta
Typ av anläggning: Nedsänkt växtbädd (även kallad regnbädd, biofilter)
Anläggningsår: 2013
Ägare: Tyresö kommun
Projektör: Sweco Environment
Recipient:
Albysjön, därefter Kalvfjärden
Övrigt:
Ingick i ett Vinnovaprojekt. Ytterligare en regnbädd i Tyresö kommun anlades i Trollbäcken.
Plats: Öringevägen i Tyresö, Stockholm. Karta
Senaste nytt inom dagvatten
-
När det är dags att rensa dagvattendammen från sediment?
-
Vem betalar när privat ledning måste flyttas vid exploatering?
-
Två kommuner som arbetat med handboken för strategisk kommunal vattenplanering
-
Slutseminarium för projektet SODA – Samverkan för hållbar dagvatten- och skyfallshantering på kvartersmark
-
10-11 februari, Markavvattningsföretag i planprocessen – webbutbildning


