Visingedammen i Täby
Den samlade dagvattenhanteringen i Visinge sker i två större dammar strax intill Visinge gård. Dammarna är sammankopplade med en grov överföringsledning och betraktas därför tekniskt sett som en damm. Dammarna har dimensionerats med en stor utjämningskapacitet och med god reningseffekt av tillströmmande dagvatten. Avrinningsområdet är ca 370 hektar stort varav drygt hälften utgörs av bebyggelse av huvudsakligen småhuskaraktär. Resterande del utgörs av naturmark. Dammdjupet vid medelvattenstånd är 1 m och vid högvatten ca 40 cm högre. Dammarna är utformade med grunda zoner på fyra platser och däremellan djupare delar.

Fem öar ska förbättra dammens hydraulik och kunna utgöra skyddade platser för fåglar och andra djur. I närheten av dammarna har anlagts en övervintringsplats för groddjur. Denna, tillsammans med andra åtgärder i och omkring dammarna, hoppas kunna öka den biologiska mångfalden i området.
Inloppsdelen
Vattnet rinner in i den första dammen via ett kortare dike. Dammens första del utgörs av en hästskoformad fördamm där det mesta av medföljande partiklar ska sedimentera. Här finns möjlighet att komma åt med fordon och maskiner i dammens närhet så att fördammen ska kunna skötas mer intensivt än övriga delar om så behövs. Fördammen avslutas med en träskärm som fungerar som en olje- och skräpavskiljare. Skärmen sträcker sig ner ca 2 dm under lågvattenytan och överkanten ligger högre än dammens bräddavlopp. Vattnet passerar under skärmen och flytande orenligheter blir därför kvar i fördammen. Här samlas det mycket påsar och petflaskor och skulle det ske ett större oljeutsläpp i avrinningsområdet så slipper man sanera hela dammanläggningen.
Omväxlande djupa och grunda zoner
De djupare delarna i dammanläggningen skiljs åt med grundare zoner. Det är dels smalare kanaler med knappt fem decimeters djup och dels våtmarksdelar med bara ett par decimeters djup. I Visingedammen finns det totalt fyra stycken grunda zoner. Vegetationen som etablerat sig i de grunda zonerna utgör ett bra filter för partiklar och en livsmiljö för renande mikroorganismer
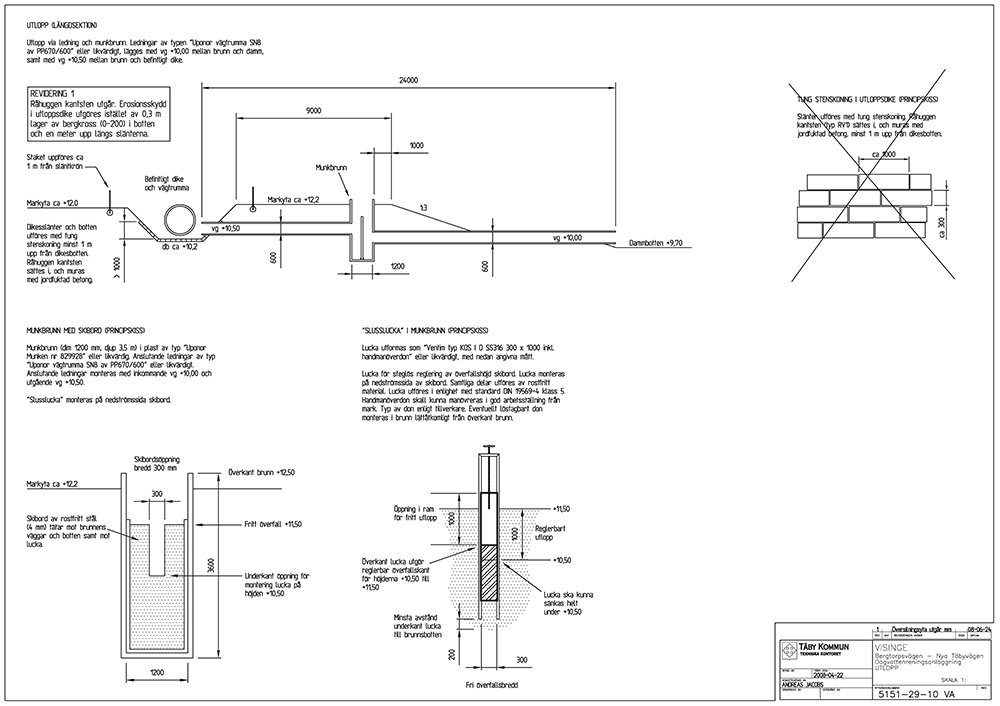
I de smalare passagerna blir vattenhastigheten högre och därför har slänter och botten erosionsskyddats med hjälp av ett lager sten. I synliga delar ligger natursten, för att slänten ska se fin ut, men under den finns grövre bergkross som tack vara sin kantighet ger ett bättre erosionsskydd.

Utlopp och bräddavlopp
Vattnet rinner ut från anläggningen via en så kallad munkbrunn (reglerbrunn), det vill säga en brunn med ett dämme i. Dämmets överfallskant reglerar vattenytans nivå i dammen.
Röret som leder till brunnen från dammen ligger några decimeter under vattenytan för att inte flytande orenligheter ska följa med vattnet ut. Det är också viktigt att utloppet inte ligger för nära botten eftersom det då kan följa med sediment ut ur anläggningen.
Utloppskonstruktionen i Visingedammen är lite speciell. Dämmet i munkbrunnen är utrustat med en upp-och-nedvänd slusslucka. Slussluckans överkant utgör dammens dämningsnivå. Detta gör det möjligt att steglöst justera dammnivån. Det är en dyrare konstruktion, men samtidigt mycket flexibel.

Bräddavloppet ska kunna svälja alla flöden som kan förekomma i dammen. I Visingedammen är bräddavloppet utformat som ett stigarrör en bit in i dammens utloppsdel. Längst upp på stigarröret finns en metallmanschett som steglöst går att höja eller sänka om man vill justera bräddnivån i dammen.
Justerbart utlopp och bräddavlopp i Visingedammen gör det möjligt att enkelt ändra dimensioneringen av dammens volym eller utjämningskapacitet. Bräddavloppets specialkonstruerade reglermuff kan man ändra bräddnivån åtminstone 3-4 dm. Utloppets upp-och-nedvända slusslucka kan steglöst höja och sänka dammens lågvattennivå med så mycket som en meter. Något som kan komma väl till pass om man vill optimera dammens funktion med framtida intensivare regn eller ändra de dimensioneringsprinciper. Fluktuationsdjupet skulle genom att ändra inställningarna på bräddnivån kunna sättas till minst det dubbla.

Vegetation och gestaltning
När Visingedammen anlades så återfördes inte någon matjord på slänterna. Gräs såddes in direkt på leran vid ett par tillfällen. På norrslänterna har gräset tagit sig ganska bra, men på de slänter som ligger i söderläge har inte gräset tagit sig lika bra. Det har nu gått några år och gräset börjar så sakteliga vandra ner ifrån släntkrönet, och upp ifrån släntfoten där det varit fuktigare förhållanden för gräset att gro.
På hyllorna i dammarnas kanter växer bland annat skogssäv och starrarter, förutom bladvass och kaveldun. Det mesta är självetablerat. På några platser har dock blommande växter planterats in för att göra det vackrare. Dessa har satts i grupper. För att driftpersonalen ska veta vilka växter som ska klippas och inte vid skötsel av grönytor och slänter så har stenar lagts ut runt planteringarna. Det blir ett tydligt avbrott mellan planterat och självetablerat.
Vid dammarna finns en enkel grusad promenadstig som går runt hela anläggningen. Det finns även träd- och buskplanteringar och sittplatser med bord. Buskarna är inte bara trevliga utan fungerar även som skydd för småfåglar. Träden kommer med tiden att ge mer och mer beskuggning över dammytan vilket minskar algtillväxten och gynnar djurlivet. I dammarna finns flera stycken öar. Syftet med öarna är dels att styra vattenflödet så att en så stor del av vattenvolymen som möjligt utnyttjas, och dels att de ska utgöra skyddade häckningsplatser för fåglar. Dessutom kan de träd som växer sig stora på öarna utgöra goda möjligheter till beskuggning av vattenytan.
Fontänen i dammens utloppsdel är främst ett estetiskt inslag, det ska se fint ut eftersom det är en mycket publik dammanläggning. Men den bidrar även till syresättning av vattnet vilket är positivt för diverse nedbrytande processer och för livet i vattnet.
Skötsel
Klippning av gräs omkring dammarna utförs hela växtsäsongen. Eftersom Visingedammarna är en publik anläggning som är väl synlig för människor läggs lite extra vikt vid utseendet. Gräsklippningen utförs så pass ofta att området uppfattas som trevligt och välskött. Det innebär klippning av gräsytorna åtminstone en gång i månaden, men ofta bara med ett par veckors mellanrum. Dammarnas slänter och vegetationen på öarna klipps inte lika ofta, bara någon gång årligen. Inga arbeten utförs i vattenmiljön under maj och juni eftersom det då finns risk att man stör djurlivet. Det kan röra sig om exempelvis häckande fåglar och grodyngel. Insatser för att minska igenväxning sker inte regelbundet. Det utförs som punktinsatser då behovet uppstår och planeras då oftast in till senhösten då den biologiska verksamheten är låg
Träd och buskplanteringar sköts efter behov. Den största utmaningen med skötseln i Visinge är ogräsrensning på de gruslagda gångstigarna.

Tillgänglighet för maskiner
Fordonsramper har skapats på flera platser i dammarna. Detta har gjorts genom att slänten förstärkts med geotextil och ett tre decimeter tjockt lager av bergkross. Ramperna är tre meter breda och är till för att man ska kunna köra intill med grävmaskin eller släpkärra om man till exempel ska sjösätta en båt. Det finns en ramp i varje djup del av dammen
Mervärden för biologisk mångfald
I anslutning till dammanläggningen har en övervintringsplats för groddjur anlagts. Principen bygger på att efterlikna hur naturliga övervintringsplatser brukar se ut.
Det så kallade grodhotellet är ett till hälften nedgrävt stenröse. Bottnen är väldränerad och utgörs av grov sand där grodorna kan gräva ned sig, på frostfritt djup. Grodhotellet är placerat i närheten av skogen där grodorna kan finna mat, och är orienterat med öppningen i söder, vänd mot den värmande vårsolen.

Säkerhet
Utmed dammarna finns en 1 meter bred hylla som ligger två decimeter under lågvattenytan. På hyllan har våtmarksvegetation etablerat sig. Syftet med hyllan är att den ska fungera som ett skydd – att göra dammen säkrare för barn, eller för den delen vuxna, som råkat kliva i vattnet. De kommer då ut på grunt vatten vilket gör det lättare ta sig tillbaka upp på land.
När vegetationen på hyllorna blir tät så utgör den ett bra hinder som gör det svårt för barn att ta sig ut till det djupare vattnet. Slänterna är i regel flacka i de delar som människor har tillträde till.

Följ med på en rundtur vid Visingedammen! Se filmerna som visar dammen lite mer ingående via länkarna nedan.
Karta
Snabbfakta
Typ av anläggning: Två större dagvattendammar
Anläggningsår: 2008-2009
Projektör: Andreas Jacobs, Täby kommun
Yta: 7 200 m²
Avrinningsområde:
370 ha ha bebyggelse varav 200 ha är villabebyggelse och resterande 170 ha är naturmark.
Recipient: Vallentunasjön via Karbyån
Övrigt:
Skapade mervärden för biologisk mångfald: övervintringsplats för grodor, lekplats för trollsländor samt biholkar
Plats: Täby. Karta
Senaste nytt inom dagvatten
-
Nytt verktyg ska underlätta val av urbana blågröna lösningar
-
Vad krävs vid omledning av en bäck som ingår i ett markavvattningsföretag?
-
Hjälp att förstå tillstånd och ritningar för jordbrukets vattenanläggningar
-
Vilka kriterier styr om fastigheten ska ingå i verksamhetsområde för dagvatten gata?
-
Ny studie av klimatavtrycket från fyra dagvattenanläggningar



